Franklin

48 Tillotson Loop, Okotoks, Alberta

Details

  • Bedrooms
    3
  • Bathrooms
    2.5
  • Square Feet
    1,472
  • Community

Pricing & Availability

  • $594,000 Inc GST*
  • June 2026

*All prices are subject to change.

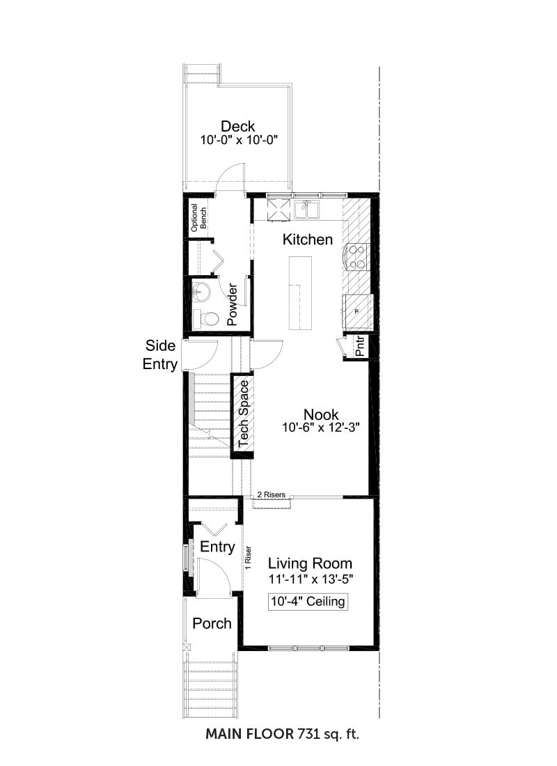
Features

  • Open Concept Living Area
  • Sunken Living Room
  • 10’4” Living Room Ceiling
  • Luxury Vinyl Plank Flooring
  • Luxury Vinyl Tile
  • Stainless Steel Appliance Package
  • Quartz Countertops Throughout
  • Upper Floor Laundry
  • Rear Deck
  • Front Porch
  • Side Entry
  • Detached Double Car Garage
  • Triple Pane Windows

Floor plans

Click to enlarge or download the full PDF floor plans below. 

For more information please contact